Sold

83 Wakeham St, Stawell

SOLD for $359,000

2 1

Look, You’ll Love It.

 

Such a bright and welcoming home and we would love to show you through. Inside and out you will be impressed and no doubt the next owners will love living here as well.

 

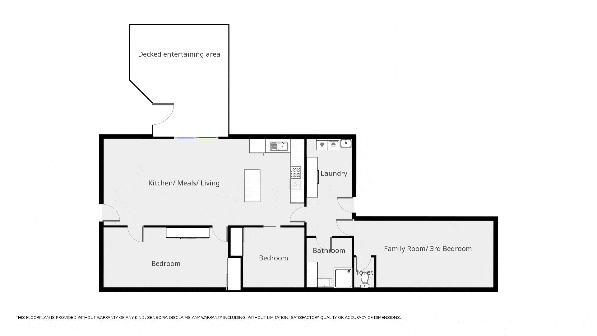
A big reverse cycle split system heats and cools the living areas plus you have the option of new gas heating if required. The family dining space adjoins the kitchen and also opens onto a private alfresco six by five meter entertaining deck with northerly views. Plenty of cupboard and bench space in the remodeled kitchen and the gas side by side stove is a real back saver.

 

Modern fully tiled bathroom with a separate shower recess, custom vanity and a tastic is a delight, separate toilet, huge air conditioned main bedroom with two built-in robes, second double bedroom also with a built-in robe, separate family room or possibly a very large third bedroom and built-in storage in the laundry.

 

Ten money saving solar panels have recently been installed and have dramatically reduced the power bills. Additional benefits of this solid home are concrete stumps, aluminum windows and safety switches.

 

On the nine hundred and thirty square metre block there is a double garden shed, old workshop and storeroom, double carport and a very neat well-kept yard. 

 

 

 

 

 

 

 

 

 

 

Details

Address 83 Wakeham St, Stawell
Price SOLD for $359,000
Property Type Residential
Property ID 3285
Category House

Share

Melanie Pitts photo

Melanie Pitts

0407 100 300